传递窗在洁净室设计规范中的几个关键要点
洁净室是保障生产过程无尘或低尘的关键环境,而传递窗作为洁净室内部以及洁净室与外界环境之间的连接通道,传递窗设计规范对洁净室的运行效率和安全性具有重要意义。以下是传递窗在洁净室设计规范中的几个关键要点:

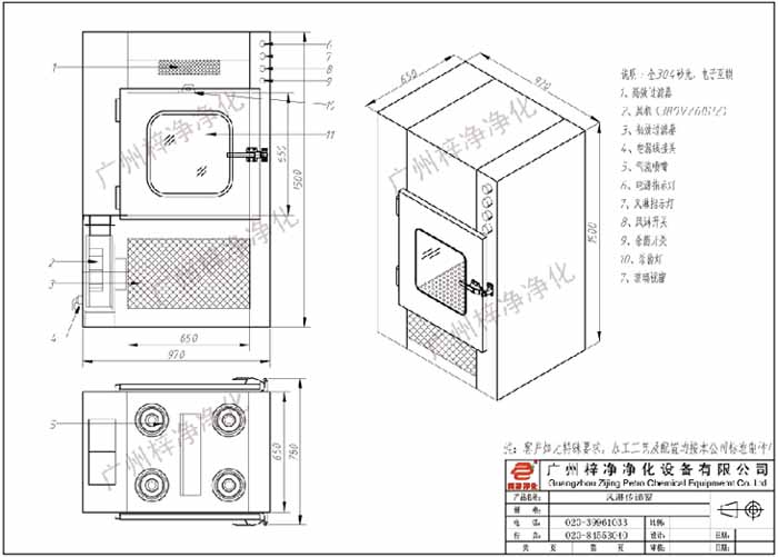
一、传递窗基本要求
材料选择:传递窗的材料应选择不吸附尘埃、易于清洁和维护的材料,如不锈钢、铝、塑料等。
密封性能:传递窗的密封性能至关重要,应确保在关闭状态下能够有效地防止尘埃和污染物的穿透。
尺寸设计:传递窗的尺寸应根据需要传递物品的大小和重量进行设计,同时考虑操作便利性和空间利用率。

二、传递窗结构设计
隔断设计:传递窗应设置有效的隔断,以防止洁净室内的污染物流向外部环境。
双向传递:传递窗设计应允许物品在两个方向传递,以提高工作效率和灵活性。
自锁机构:传递窗应配备自锁机构,确保在物品传递过程中能够保持稳定状态。

三、传递窗操作与维护
操作流程:传递窗的操作应简单易行,传递窗应设计明确的操作流程和指示标识,确保操作人员能够正确使用。
清洁与消毒:传递窗应易于清洁和消毒,定期进行清洁和消毒,以保持其清洁状态。
监测与记录:对传递窗的运行状态进行监测,并记录相关数据,以便及时发现问题并进行维护。

四、洁净度要求
空气过滤:传递窗的进出口应配备高效的凯发k8国际首页,确保进入洁净室的空气符合洁净度要求。
压差控制:传递窗两侧应设计合理的压差,以维持洁净室内的正压,防止外部污染进入。

五、传递窗安全与节能
安全设计:传递窗的设计应考虑操作人员的安全,避免潜在的安全隐患。
节能措施:在满足洁净度要求的前提下,采用节能设计,如优化空气流动路径,减少能源消耗。

六、传递窗规范标准
设计标准:传递窗的设计应符合行业的相关标准和规范。
定制化设计:传递窗是根据洁净室的具体需求,可以进行定制化设计,以满足特定的应用场景。
传递窗作为洁净室的关键设备之一,传递窗设计规范直接影响到洁净室的洁净度、效率和安全性。因此,在洁净室的设计与建设过程中,传递窗的设计规范应得到充分重视,以确保洁净室的正常运行和生产过程的顺利进行。